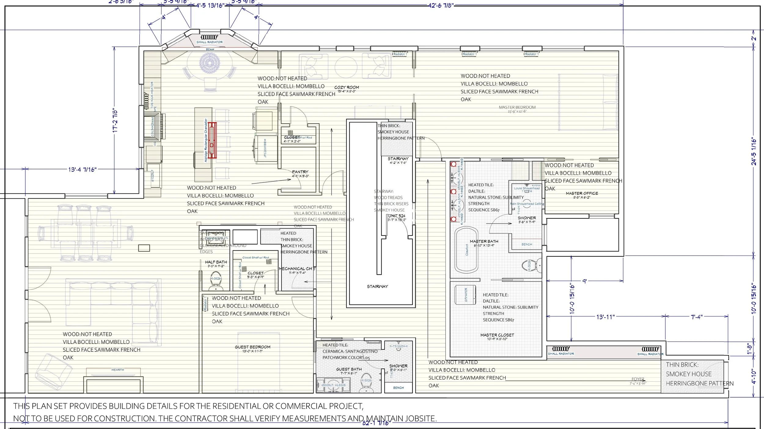
Unit 524

This sample floor plan and all finishes fits within the Fit-Up Allowance included in the Unit Pricing.

This sample floor plan and all finishes fits within the Fit-Up Allowance included in the Unit Pricing.

Unit 524

The Great Northern Block offers you the opportunity to design your own floor plan and finishes. At 2,487 square feet on the second floor, our largest unit offers ample space for a three-bedroom, three-bathroom home.

The flexible floor plan allows you to attribute your spacious west-facing balcony and your bay windows overlooking Great Northern Park to whichever rooms you choose. 

Thanks to the unique parking ramp design, your private, two-car garage is located exactly one step from your mudroom or kitchen, so there’ll be no schlepping groceries up flights of stairs. 

The building’s 5,000-square-foot Top Yard is a community space with a full kitchen and bar, turf bocce-ball courts, box gardens, and various seating areas lit by fire pits and market lights. 

And remember, you’re just 80 feet from Great Northern Park, 200 feet from Broadway, and 1200 feet to Fargo’s Red River Trail system.

FLOOR PLANS

——> Sample Fit-up 1/8” scale Fits on Letter Size Paper

——> Blank Slate 1/8” scale Fits on Letter Size Paper

——> Blank Slate 1/4” scale Fits on Arch-C 18” x 24”

(Be careful to print plans at DEFAULT size to preserve scale)

Print an Info Page